Holt Watters Field Camp Phases I and II | 2022-23

Exterior of the Cape Shirreff Field Came community and dwelling units on the Auraria Campus.

The Antarctic Ecosystems Research Division of NOAA Fisheries conducts scientific research on the population dynamics, behavior, diet, and survival of Antarctic seabirds and pinnipeds on Livingston Island in Antarctica. After 25 years in the harsh Antarctic climate, their modest research facility fell into disrepair and required replacement.

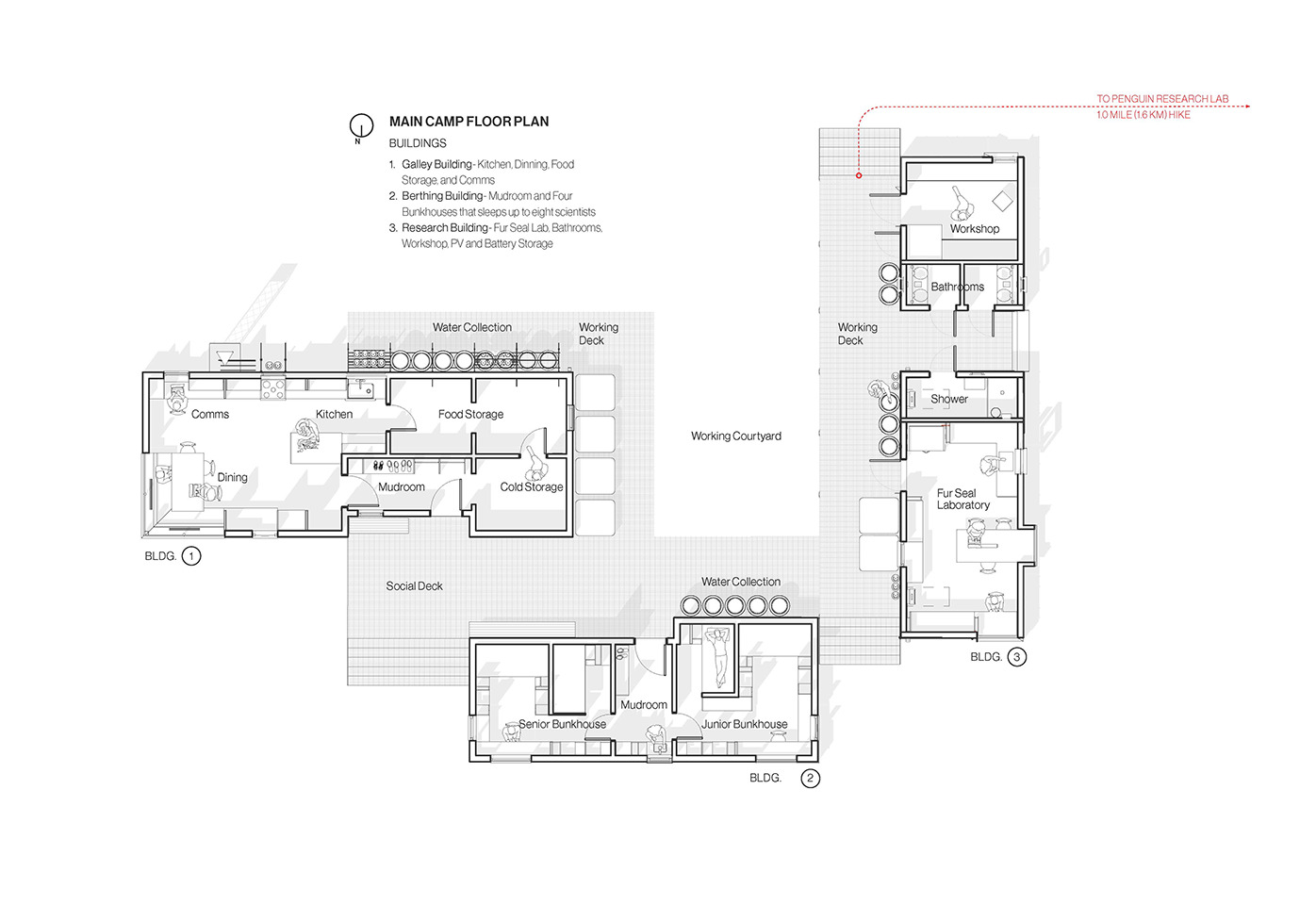
The 2000 sq. ft. Holt Watters Field Camp was conceived to replace the deteriorating structures. Three buildings comprise the main campus; the fourth, a remote penguin research facility, is a short one-mile hike away. The first two buildings, the dining hall and sleeping quarters were designed and pre-fabricated in Denver by students during the 2022 spring semester. The following year, a new cohort of students designed and pre-fabricated the scientific labs and remote penguin research facility. At the end of the semester, the students disassembled the buildings and packed them to ship to Antarctica.

The remoteness of the field station, which is only accessible by zodiac, required a pre-fabricated, lightweight, highly insulated, and nearly maintenance-free building solution that could be pre-fabricated offsite and reassembled in less than two months during Antarctica’s austral summer. The flat-packed building components were required to be no larger than 1’x4’x16’ to fit on zodiacs and light enough to be lifted by no more than four people.

The offset gable roof forms of the two main buildings take their shape to collect rainfall, the only source of water for the scientists. The long, thin building behind the two main structures acts as a wind fence, keeping snow from accumulating in the courtyard. The long building also houses the photovoltaic (P.V.) array, which provides the only source of power for the camp.

Functionally, the light-interfering color, stainless steel cladding, and stainless roofing help create a maintenance-free facade over a structurally insulated panel core fitted with triple pane windows. Water-resistant Meranti plywood clads the interior.

2022

Leo Borasio
Robert Cleary
Charles de Pottère
Jennifer Dear
Ciara DeBusk
Adam Dergosits
Casie Hilyard
Benjamin Jaworski
Jasmine Jones
Caitlin Kennedy
Taylor Kortas
Kathryn Landers
Paola Larios
Sean McBride
Carson McKee
Peter Myller
Evan Norkosky
Adam Sangiolo
Katherine Tardif
Jacob Taswell
Antonio Valencia
Erin Walrath

2023

Chris Beckley
Nick Berg
Rey Chavarria
Abi Downs
Logan Ebert
Sean Gatzen
Myah Gifford
Brewster Glascock
Cristian Gomez
Victoria Goss
Mikayla Grunin
Willa Hendler
Reed Jacobson
Meghan Kress
Chris Lundahl
Matthew McLendon
Lauren Policar
Gavin Rea
Marshall Reilly
Krystal Vallejos
Sara Venusti
Evan Weller
Mo Zaina


Faculty
Rick Sommerfeld
Will Koning 

Staff
Kate Hartung
Connor Rumsey

Contractor and Project Prime
Brandon Neahusan, Bespoke Project Solutions
Jaime Yelvington, Bespoke Project Solutions

Engineers and Consultants       
Jon Brooks, AE Designs, Electrical and Lighting Design
Miles Dake, Dake Collaborative, Mechanical Engineering
Andy Paddock, KL&A Structural Engineering
Blythe von Reckers, MH Lighting, Lighting and Controls
Christian Stover, Marx Okubo, Forensic Architect
Kelsey Wotila, Sustainability Consultant
Mike Blea, RAW Creative
Breton Lujan, RAW Creative
Geoff Phillips, Field Construct Services

Austin Hardwoods
Big Sky Insulation
Fibergrate Composite Structures
Field Construct Services
Fjäll Räven
Glass Systems
Hunter Douglas
Kohler
Legrand
Manko Window Systems, Inc.
Marx|Okubo
The MH Companies
MillerKnoll
Odie’s Oil
Raw Creative
Schafer & Company
SFS Fasteners
Simpson Strong-tie
Snavely Forest Products
VaproShield
Wolf

College of Architecture and Planning

CU Denver

CU Denver Building

1250 14th Street

2000

Denver, CO 80202


303-315-1000

CMS Login